Mẫu thiết kế nhà 2 tầng phong cách hiện đại mặt tiền đẹp với diện tích 100m2, được xây dựng trên ô đất 150m2 với kinh phí đầu tư dự kiến khoảng 700 triệu do chị Giang ở thành phố Hải Phòng làm chủ đầu tư.
Đáp ứng yêu cầu và mong muốn của gia chủ về một không gian sống hiện đại, sang trọng, cá tính, các kiến trúc sư của chúng tôi đã hết sức tâm lý, linh hoạt thiết kế mẫu nhà phố phù hợp này. Khắc phục hạn chế về mặt diện tích, không gian trật trội trong khu phố, ngôi nhà 2 tầng mặt theo phong cách hiện đại được xây dựng vuông vắn, ấn tượng, mang những nét riêng so với mẫu nhà phố khác xung quanh.
Thông số mẫu thiết kế nhà phố 2 tầng 100m2 hiện đại ở Hải Phòng:
1. Mẫu nhà phố: NP456099
2. Số tầng: 2 tầng
3.Chủ đầu tư: Chị Giang
4. Địa chỉ: Hải Phòng
5. Mặt tiền: 7.7m
6. Chiều sâu: 16.3m
7. Kích thước ô đất: 150m
8. Kiến trúc sư thiết kế: Nguyễn Thị Định
9. Kỹ sư kết cấu: Lê Văn Nhung
10. Kỹ sư điện nước: Nguyễn Văn Cao
11. Năm thi công: 2016
12. Kinh phí đầu tư dự kiến: 700 triệu
13. Thông số công năng diện tích:
- Tầng 1: 1 phòng khách, 1 phòng bếp ăn, kho để đồ, 1 phòng vệ sinh, 1 phòng sinh hoạt , diện tích 100m2
- Tầng 2: 3 phòng ngủ, 1 phòng thờ, 2 phòng vệ sinh, diện tích 100m2.
Phối cảnh mẫu thiết kế nhà phố 2 tầng mặt tiền đẹp với phong cách hiện đại.
Chúng tôi lựa chọn cho mẫu thiết kế nhà phố 2 tầng 100m2 ở Hải Phòng với màu sơn ngoại thất chủ đạo là tông màu trắng nhẹ nhàng, tinh tế. Mặt khác, được biết gia chủ sinh năm 1984, thuộc mệnh Kim mà màu trắng được xem như là màu sắc của người thuộc mệnh Kim. Kết hợp với đó là tone màu xám và những những ô cửa kính trong suốt tạo vẻ đẹp sang trọng, hiện đại cho phần ngoại thất của ngôi nhà. Đặc biệt sự phối hợp của những tone màu đó rất hợp phong thủy, luôn mang lại sự may mắn, thịnh vượng, an lành cho gia chủ.

Phối cảnh 1: Thiết kế nhà phố tầng 100m2 ở Hải Phòng
Ngắm mẫu thiết kế nhà phố 2 tầng mặt tiền 7.7m ở Hải Phòng mang đậm chất hiện đại.
Nhìn tổng thể mẫu thiết kế, ngôi nhà sở hữu những hình khối vuông vắn, đường nét dưt khoát, mạnh mẽ. Những hình khối có sự liên kết, hài hòa với nhau tạo cho toàn bộ mẫu thiết kế sự hiện đại , mới lạ, hết sức gọn gàng mà không cần đến những chi tiết cầu kỳ, đồ sộ. Ở phần mặt tiền tầng 1 và tầng 2 được thiết kế những mảng tường ốp gạch nhám kẻ và đá ghép bao quanh khung cửa ở mặt tiền tầng 1 và tầng 2. Để phù hợp với phong cách hiện đại của mẫu thiết kế, chúng tôi sử dụng toàn bộ hệ thống cửa kính cho cửa ra vào cũng như cửa sổ. Những lớp kính dày trong suốt, cường lực, cách âm đem lại không gian yên tĩnh khi cần thiết, giúp cho không gian thêm sáng sủa, đồ nội thất thêm vẻ lung linh, tươi mới, bảo vệ nội thất của ngôi nhà cũng như đảm bảo về mặt thẩm mỹ, mang đến sự sang trọng, hiện đại. Nhà phố 2 tầng hiện đại ở Hải Phòng còn sử dụng các đường lam che nắng che mưa bảo vệ kết cấu bên trong ngôi nhà đồng thời tạo một không gian mở, mang lại sự khác biệt.
Chúng tôi còn thiết kế tường rào bao quanh cũng như cổng chính của ngôi nhà sao cho thể hiện được sự chắc chắn cũng như phong cách hiện đại hài hòa với tổng thể mẫu thiết kế. Phần tường rào cũng sử dụng gạch nhám kẻ để tạo sự liên kết, hòa hợp với phần ngoại thất của ngôi nhà. Kết hợp với chiếc cổng lớn được thiết kế bởi những thanh sắt vững chãi, đảm bảo về mặt an ninh cũng như đáp ứng yêu cầu về mặt thẩm mỹ.

Phối cảnh 2: Thiết kế nhà 2 tầng 100m2 với phong cách hiện đại
Mẫu thiết kế nhà 2 tầng 100m2 hiện đại với sân vườn mini trên tầng thượng
Khi nhìn thoáng qua, mẫu thiết kế tưởng trừng thiếu đi một khoảng không gian xanh, thiếu sự hòa hợp với tự nhiên do diện tích hạn hẹp ở khu phố. Tuy nhiên chính nhờ sự hạn chế đó mà các kiến trúc sư của chúng tôi đã sáng tạo một không gian sân vườn mini trên tầng thượng của ngôi nhà. Đây cũng là điểm nhấn, điểm đặc biệt của mẫu thiết kế nhà đẹptrên phố 2 tầng 100m2 này. Ngôi nhà sở hữu một không gian tự nhiên thoáng đãng, trong lành, gần gũi với thiên nhiên đồng thời mang lại sự riêng tư, thư giãn, thoải mái cho gia chủ. Nó không chỉ giúp điều hòa không khí mà còn giúp chống nóng, giảm nhiệt độ trong mùa hè nóng bức cho không gian tầng 1 và tầng 2.
Thiết kế mái bằng được sử dụng cho mẫu nhà phố 100m2 ở Hải Phòng tạo cho tổng thể mẫu thiết kế thành một khối thống nhất, vuông vắn, chắc chắn, kiên cố mà vẫn mang phong cách hiện đại, sang trọng.
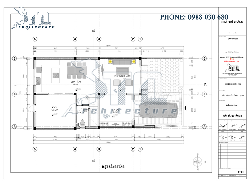
Chi tiết mặt bằng công năng mẫu thiết kế nhà phố 2 tầng 100m2

Mặt bằng tầng 1: Thiết kế nhà phố 2 tầng 100m2
Mẫu thiết kế nhà phố 2 tầng đẹp với diện tích 100m2 ở Hải Phòng với mặt bằng tầng 1.
Với toàn bộ diện tích khu đất rộng 150m2, thì phần lớn diện tích được tận dụng làm nhà ở. Một phần diện tích nhỏ ở trước nhà được sử dụng làm khu vực để phương tiện đi lại và khoảng sân chơi cho trẻ nhỏ.
Qua 3 bậc tam cấp thềm nhà tiền sảnh trước bước lên đại sảng tiến tới không gian phòng khách. Phòng khách với diện tích 17m2 được bố trí đầy đủ đồ nội thất tiện nghi, hiện đại như bộ bàn ghế sofa, tủ, kệ ti vi. Với hệ cửa kính cường lực, cách âm lớn, trong suốt, mang lại nguồn ánh sáng và gió tự nhiên cho căn phòng đồng thời cũng làm cho không gian phòng khách và đồ nội thất thêm sáng sủa, sang trọng.
Đối diện phòng khách là một phòng sinh hoạt cho cả gia đình có diện tích 12.2m2 với hệ cửa cánh lùa tiện lợi khi ra vào và cửa sổ khung nhôm kính lớn tạo không mở, thoáng đãng. Căn phòng được thiết kế mặt sàn gỗ, sang trọng trang bị ti vi, dàn karaoke hiện đại nhằm phục vụ nhu cầu giải trí của các thành viên trong gia đình. Không gian này sẽ mang lại sự thoải mái, tiện nghi, vui vẻ cho các thành viên thư giãn vào dịp cuối tuần.
Tầng 1 của ngôi nhà có phòng bếp ăn liên thông. Trong 19m2 diện tích, phòng bếp ăn được bố trí đầy đủ, sắp xếp gọn gàng các đồ dùng cần thiết mà không gian phòng bếp ăn vẫn thông thoáng, giúp cho các thành viên dễ dàng di chuyển. Phòng bếp sở hữu dãy bàn nấu ăn nằm sát tường vừa tiện lợi vừa tiết kiệm diện tích. Ngoài ra bộ bàn ăn 8 ghế được đặt gọn gàng, đầy đủ cho các thành viên cũng như khách đến nhà. Cửa sổ kính kích thước lớn giúp mùi thức ăn còn xót lại trong phòng dễ dàng thoát ra ngoài đồng thời thu hút được nguồn ánh sáng và gió tự nhiên khiến căn phòng trở nên thoáng mát, khoáng đãng hơn.
Một phòng vệ sinh chung được thiết kế ngay cạnh cầu thang thuận tiện cho người sử dụng đồng thời tiết kiệm phần diện tích tầng 1 của ngôi nhà.
Phần diện tích còn lại ở tầng 1 được tận dụng làm kho chứa đồ rộng 16m2. Phòng chứa đồ cũng được thiết kế cửa cánh lùa hiện đại và một cửa ngách đi ra phía sau nhà tiện lợi trong quá trình di chuyển.

Mặt bằng tầng 2: Mẫu thiết kế nhà phố 2 tầng hiện đại 100m2
Mẫu thiết kế nhà phố 2 tầng hiện đại 100m2 với mặt bằng tầng 2.
Mặt bằng tầng 2 của mẫu thiết kế nhà phố 2 tầng hiện đại gồm: 3 phòng ngủ, 1 phòng thờ, 2 phòng vệ sinh. Phòng ngủ 1 với diện tích 19m2 có phòng vệ sinh khép kín tạo không gian riêng, thích hợp cho các cặp vợ chồng. Không gian phòng ngủ khá rộng rãi với đầy đủ đồ nội thất tiện nghi như: giường, tủ, kệ ti vi, ghế ngồi, bàn làm việc, bàn trang điểm. Hệ cửa kính 4 cánh cùng với cửa sổ nhỏ phía đầu giường sẽ đem lại cho căn phòng nguồn ánh sáng tự nhiên cùng với không khí thoáng mát, dễ chịu, dễ dàng hướng tầm mắt quan sát khung cảnh bên ngoài. Hơn nữa, phòng ngủ còn có một cửa nhỏ đi ra phía ban công. Ngoài ban công còn được thiết kế bồn trồng cây cảnh tạo ra không gian trong lành, gần gũi với thiên nhiên. Phòng vệ sinh được phân thành 2 khu: một khu để tủ quần áo đặt bên ngoài và khu tắm giặt khá rộng với đầy đủ: 2 bồn rửa mặt, 1 bồn tắm và xí bệt.
Phòng ngủ 2 và 3 có diện tích tương đương khoảng 14m2. Các phòng ngủ đều được thiết kế cửa sổ kính cách âm, đảm bảo về chất lượng, không bị cong vênh do ảnh hưởng của thời tiết. Các đồ nội thất được sắp đặt gọn gàng, đáp ứng nhu cầu làm việc cũng như nghỉ ngơi, thư giãn của các thành viên trong gia đình, gồm có: giường, tủ quần áo, ti vi, bàn làm việc. Phòng vệ sinh nằm sát cầu thang là phòng vệ sinh chung vừa tiết kiệm diện tích và kinh phí cho gia chủ.
Diện tích mặt bằng tầng 2 cũng được bố trí một phòng thờ với diện tích 8m2. Đây là không gian linh thiêng, cần sự yên tĩnh, trang trọng, thể hiện sự biết ơn, tưởng nhớ, lòng thành kính của con cháu đối với tổ tiên.
Mẫu thiết kế nhà phố 2 tầng 3 phòng ngủ 100m2 ở Hải Phòng vừa đảm bảo công năng sử dụng, vừa được đánh giá cao về mặt thẩm mỹ cũng như đáp ứng mọi yêu cầu của các thành viên trong gia đình về một không gian sống hiện đại, phong cách và gần gũi với thiên nhiên. Khắc phục hạn chế về mặt diện tích, chúng tôi đem đến một mẫu thiết kế độc đáo, mới lạ, đậm chất hiện đại, mang đến sự tiện nghi cho gia chủ.
Nếu quý vị yêu thích mẫu nhà phố đẹp này, hãy liên hệ với chúng tôi để được tư vấn chi tiết hơn.
Hotline: 0972 08 6868
Không có nhận xét nào:
Đăng nhận xét