Mẫu thiết kế nhà lô phố 2 tầng mái bằng hiện đại 10x16m là sự lựa chọn hàng đầu cho những gia đình bình dân và trung lưu có thu nhập tương đối. Ngôi nhà với hình thức kiến trúc mái bằng hiện đại nổi bật qua từng đường nét, hình khối khỏe khoắn nhưng đơn giản, kết hợp với hệ thống cửa và lan can bằng kính càng tôn lên đặc trưng hiện đại của mẫu nhà lô phố này. Thiết kế nhà đòi hỏi kinh nghiệm, con mắt thẩm mỹ của các kiến trúc sư cũng như sự chỉn chu, kĩ lưỡng một cách chi tiết cả về không gian ngoại thất cũng như nội thất.
Dưới đây là mẫu nhà lô phố 2 tầng 10x16m ở Thanh Hóa đã được thiết kế đơn giản, hiện đại, là điểm nhấn về mặt thẩm mỹ thu hút ánh nhìn của người xem.
Thông số mẫu thiết kế nhà phố 2 tầng 160m2 theo phong cách hiện đại với chi phí đầu tư 1,1 tỉ VNĐ.
1. Mẫu biệt thự: NP280416
2. Số tầng: 2 tầng
3. Chủ đầu tư: Chị Dung
4. Địa chỉ: Thanh Hoá
5. Mặt tiền: 10m
6. Chiều sâu: 16m
7. Kích thước ô đất: 280m2
8. Kích thước xây dựng: 160m2
9. Kiến trúc sư thiết kế: Phạm Thành Tư
10. Kỹ sư kết cấu: Nguyễn Văn Hưng
11. Kỹ sư điện nước: Nguyễn Văn Cao
12. Năm thi công: 2016
13. Kinh phí đầu tư dự kiến: 1 tỷ VNĐ
14. Thông số công năng diện tích:
Tầng 1: 1 phòng khách, 2 phòng ngủ khép kín, 1 phòng bếp, 1 phòng vệ sinh chung, diện tích 160m2.
Tầng 2: 1 phòng thờ, 1 phòng ngủ khép kín, 1 phòng vệ sinh chung, sân chơi, phòng thể thao, kho, diện tích 160m2.
Tầng 1: 1 phòng khách, 2 phòng ngủ khép kín, 1 phòng bếp, 1 phòng vệ sinh chung, diện tích 160m2.
Tầng 2: 1 phòng thờ, 1 phòng ngủ khép kín, 1 phòng vệ sinh chung, sân chơi, phòng thể thao, kho, diện tích 160m2.
Ngắm nhìn mẫu nhà lô phố 2 tầng 3 phòng ngủ hiện đại ở Thanh Hóa
Mẫu nhà phố 2 tầng hiện đại 160m2 được xây dựng theo hướng Tây Bắc (Phục Vị) hợp phong thuỷ, hợp với tuổi chồng chị Dung. Được biết anh sinh năm 1985 (Ất Sửu) thuộc mệnh Kim nên lựa chọn hướng nhà theo hướng Tây Bắc sẽ đem lại nhiều may mắn trong công việc, nhận được sự giúp đỡ, cuộc sống ổn định,an lành. Chúng tôi sử dụng màu sơn ngoại tất tone màu trắng làm tone màu chủ đạo, hợp với tuổi của gia chủ. Đây là tone màu nhẹ nhàng đem lại sự tinh tế, sang trọng và dễ dàng kết hợp với các tone màu khác. Đặc biệt chúng tôi kết hợp với màu xám của gạch inax ở phần mặt tiền nhằm tạo điểm nhấn cho mẫu thiết kế, làm nên nét độc đáo, hiện đại đồng thời các màu sắc này là màu sắc sinh thịnh vượng sẽ đem tới phúc lộc, phú quý cho gia chủ.
Phối cảnh 1: Thiết kế nhà phố 2 tầng hiện đại 160m2 ở Thanh HoáMẫu thiết kế nhà phố 2 tầng 160m2 với đường nét độc đáo, hiện đại
Nhìn tổng thể ngôi nhà sở hữu những hình khối vuông vắn, đường nét thẳng tắp, khoẻ khoắn. Những hình khối với kích thước vừa vặn, được tính toán khoa học và sắp xếp hợp lý, liên kết với nhau tạo thành một khối thống nhất, vững chãi. Những chi tiết tuy đơn giản nhưng được thể hiện hết sức sáng tạo, tạo nên điểm nhấn cho toàn bộ mẫu thiết kế, vừa đảm bảo các thông số kỹ thuật, công năng sử dụng vừa được đánh giá cao về mặt thẩm mỹ. Thêm vào đó, các kỹ sư quyết định lựa chọn gạch inax màu xám ở mặt tiền tầng 1 và tầng 2. Đây là vật liệu xây dựng ngày càng trở nên thông dụng và là sự lựa chọn tối ưu cho những ngôi nhà mang phong cách hiện đại. Gạch inax mà chúng tôi sử dụng đảm bảo về chất lượng, không bị xâm nhập bởi nấm mốc, trày xước, bền đẹp theo thời gian và phù hợp với tổng thể lối kiến trúc, tạo sự lôi cuốn, vô cùng hiện đại. Một trong những điểm nhấn của mẫu thiết kế đó là phần lam thép bền chắc, không han rỉ ở ban công tầng 2, vừa có tác dụng che nắng, che mưa, bảo vệ nội thất, vừa dùng để trang trí. Hình ảnh ngôi nhà hiện lên với phong cách hiện đại, trẻ trung và vô cùng độc đáo, nổi bật giữa khu phố.
Để thích hợp với sự hiện đại trong toàn bộ kiến trúc, chúng tôi thiết kế mái bằng cho ngôi nhà phố 2 tầng này. Hệ mái bằng đơn giản, đảm bảo kỹ thuật, đem lại sự vững chắc, kiên cô, bảo vệ nội thất khỏi những tác động của thời tiết.
Phối cảnh 2: Thiết kế nhà phố 2 tầng 10x16m hiện đại ở Thanh Hoá.Nhà phố 2 tầng hiện đại với ngoại thất độc đáo, mới lạ
Hình ảnh nhà phố 2 tầng hiện đại 160m2 mang những nét độc đáo gây được ấn tượng ngay từ cái nhìn đầu tiên. Chất liệu kính cường lực trong suốt được sử dụng khá nhiều trong mẫu thiết kế. Toàn bộ hệ thống cửa ra vào cũng như cửa sổ của ngôi nhà đều sử dụng cửa kính và cửa kính khung gỗ mang lại sự sang trọng, tinh tế và đảm bảo cung cấp đủ nguồn ánh sáng, gió tự nhiên cho không gian bên trong. Điểm đặc biệt của mẫu thiết kế chính là phần mái kính từ cổng tới tiền sảnh và phần mái kính che chắn lối đi bên hông nhà. Chúng tôi lựa chọn chất liệu này để phù hợp với sự hiện đại của tổng thể kiến trúc. Hệ mái kính này được đánh giá cao về mặt thẩm mỹ, bền đẹp, tạo sự mới lạ, khác biệt, thích ứng với mọi biến đổi của thời tiết, tạo không gian thích hợp bảo vệ, che chắn phương tiện đi lại của các thành viên và lối đi thuận tiện quan sát và chăm sóc cây cối xung quanh ngôi nhà.
Ban công tầng 2 được thiết kế lan can kính cường lực, chắc chắn, an toàn, tạo không gian thoải mái, thư giãn cho gia chủ tận hưởng không khí trong lành, mát mẻ và ngắm nhìn khung cảnh thiên nhiên, phố xá. Ban công tầng 2 còn được trang bị đèn chiếu sáng giúp ngoại thất của ngôi nhà thêm lung linh, sang trọng vào ban đêm.
Phối cảnh 3: Mẫu thiết kế nhà phố 2 tầng 160m2 hiện đại, sang trọng.Chi tiết mặt bằng công năng của mẫu thiết kế nhà phố 2 tầng 160m2

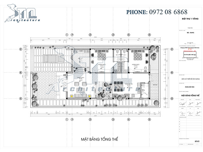
Mặt bằng tổng thể thiết kế nhà phố 2 tầng hiện đại
Trên tổng diện tích 280m2 của khu đất, ngoài diện tích 160m2 sử dụng làm nhà ở, khuôn viên chung còn có khu vực sân chơi và để phương tiện đi lại rộng 60m2, lối đi nhỏ bao quanh và khoảng sân sau 19m2.

Mặt bằng tầng 1: Thiết kế nhà phố 2 tầng 160m2 ở Thanh Hoá
Mẫu nhà phố 2 tầng mặt tiền 10m hiện đại với mặt bằng tầng 1
Bước qua bậc tam cấp lên tiền sảnh của ngôi nhà là hướng tới phòng khách diện tích 30m2. Không gian phòng khách được trang bị đầy đủ đồ nội thất sang trọng gồm bộ bàn ghế sofa, tủ kính, ti vi. Cửa ra vào 4 cánh lớn khiến không gian phòng khách được mở rộng, thoáng mát. Đối diện phòng khách là phòng giải trí cho cả gia đình với 10m2 được lát sàn gỗ và bố trí đầy đủ ti vi, đầu thu, đầu đĩa, karaoke. Đây là không gian lý tưởng cho các thành viên vui chơi, giải trí vào dịp cuối tuần cũng như khi rảnh rỗi để có thể thư giãn, vui vẻ, thoải mái sau thời gian làm việc, học tập căng thẳng.
Giáp cầu thang có một khu tiểu cảnh xinh xắn, tạo không gian thiên nhiên mát mẻ, trong lành ngay bên trong nhà. Đó cũng là một sự kết hợp sáng tạo, thông minh cho mẫu nhà phố hiện đại này.
Không gian tầng 1 bao gồm 2 phòng ngủ với phòng vệ sinh khép kín: phòng ngủ 1 có diện tích 19m2, phòng ngủ 2 rộng 22m2, tạo sự riêng tư, tiện nghi. Các phòng ngủ đều được bố trí đồ nội thất sang trọng gồm: giường, ti vi, máy tính, bàn làm việc, có một khoảng nhỏ vừa để kê tủ quần áo vừa ngăn nắp, gọn gàng và tiết kiệm diện tích. Phòng ngủ 1 có kích thước nhỏ hơn nhưng được thiết kế cửa sổ lớn nên vẫn sở hữu không gian rộng rãi, thoáng mát.
Phòng bếp ăn có diện tích 20m2 với bàn nấu ăn hình chữ L thiết kế giáp tường tiện lợi trong khi nấu nướng và tiết kiệm diện tích. Bộ bàn ăn 6 ghế được đặt gọn gàng gần cửa sổ. Một phòng vệ sinh chung được đặt gần khu vực bếp thuận tiện trong quá trình sử dụng. Chúng tôi cũng đã thiết kế thêm 1 cửa nhỏ để hướng ra phía sân sau, giúp ra chủ dễ dàng di chuyển, quản lý, quan sát khu vực phía sau ngôi nhà.
Mặt bằng tầng 2: Thiết kế nhà phố 2 tầng 160m2 ở Thanh HoáMẫu thiết kế nhà phố 2 tầng hiện đại ở Thanh Hoá với mặt bằng tầng 2
Phòng thờ với diện tích 17m2 được bố trí bàn trờ và sập. Cửa kính kích thước lớn mang lại không gian thoáng đãng, với chức năng cách âm. Hệ cửa kính cũng mang đến không gian yên tĩnh tạo sự trang nghiêm, thành kính nhưng không quá lạnh lẽo. Đây là nơi con cháu thể hiện lòng biết ơn đối với ông bà, tổ tiên.
Một phòng sinh hoạt chung rộng 26m2 có đầy đủ đồ nội thất tiện nghi như bộ bàn ghế, ti vi, tủ, là nơi cho cả gia đình sum vầy, trò chuyện, chia sẻ mọi niềm vui, nỗi buồn trong cuộc sống. Với hệ cửa kinh trong suốt cung cấp lượng ánh sáng vừa đủ cho không gian, giúp gia chủ không cần sử dụng đèn chiếu sáng vào ban ngày.
Phòng ngủ 3 với diện tích 24m2 được bố trí đầy đủ nội thất hiện đại như: giường, ti vi, máy tính cá nhân, tủ quần áo, bàn làm việc và có phòng vệ sinh khép kín.
Một phòng vệ sinh cũng được thiết kế giáp phòng ngủ đáp ứng yêu cầu của gia chủ và thuận tiện cho mọi thành viên khi sử dụng.
Tận dụng tối đa không gian tầng 2, chúng tôi thiết kế một phòng chơi thể thao 22.3m2, và sân chơi 10m2, kho chứa đồ 7m2. Do đặc điểm ngôi nhà nằm trong khu phố đông đúc, hạn chế về diện tích nên các kỹ sư đã linh hoạt tạo một không gian hợp lý cho các thành viên vui chơi, vận động, chơi thể thao. Khu vực sân chơi được đặt một bộ bàn ghế, tạo không gian yên tĩnh, gần gũi với thiên nhiên thư giãn, đọc sách, nghe nhạc hay ngắm nhìn khung cảnh xung quanh.

Mặt đứng 1-5: Mẫu nhà phố 2 tầng hiện đại ở Thanh Hoá
Nhà phố 2 tầng mái bằng hiện đại với chiều cao tầng 1 và tầng 2 là 3.6m, mặt tiền tầng 2 hướng ra phía trước 2m so với mặt tiền tầng 1 tạo điểm nhấn cho lối kiến trúc.
Mặt đứng trục C-A: Thiết kể nhà phố 2 tầng 160m2 ở Thanh Hoá.
Hệ cửa kính với kích thước khác nhau, bố trí khoa học tạo không gian sáng sủa, sang trọng, tinh tế và vô cùng hiện đại.
Mặt cắt 1-1: Thiết kế nhà phố 2 tầng 160m2 ở Thanh Hoá
Các phòng được sắp xếp hợp lý, khoa học, hợp phong thuỷ, với không gian rộng và đồ nội thất sang trọng, tiện nghi.
Mặt cắt 2-2: Thiết kế nhà phố 2 tầng 160m2 ở Thanh Hoá
Mẫu nhà phố 2 tầng có các phòng ngủ tương đối rộng, chiều sâu các phòng ngủ khoảng 4.3m tạo không gian thoải mái cho các thành viên thư giãn, nghỉ ngơi.

Mặt bằng mái: Thiết kế nhà phố 2 tầng 160m2 ở Thanh Hoá
Độ dày mái bê tông là 50 cm. Cấu tạo mái đảm bảo yêu cầu về cách nhiệt, chống dột, chịu được mưa nắng.
Hình ảnh thiết kế nhà đẹp 10x16m hiện lên với những đường nét khoẻ khoắn, hình khối vuông vắn, được kết hợp đầy sáng tạo. Mẫu thiết kế đảm bảo về mặt công năng và các thông số kỹ thuật, có tính thẩm mỹ cao, thể hiện sự sang trọng, độc đáo là lựa chọn tối ưu cho những ai yêu thích phong cách hiện đại, phá cách, mới mẻ.
Nếu quý vị yêu thích mẫu nhà phố 2 tầng hiện đại này hãy liên hệ ngay với chúng tôi để được tư vấn chi tiết hơn.
Hotline: 0972 08 6868
Không có nhận xét nào:
Đăng nhận xét