Được xây dựng trên ô đất ở Vĩnh Phúc có diện tích 600m2 với chi phí dự kiến ban đầu là 2,7 tỉ VND, biệt thự được xây dựng có 2 tầng 5 phòng ngủ 200m2 kiểu Thái mặt tiền 18m.
Đầu năm 2016, văn phòng công ty kiến trúc STQ có dịp tiếp đón chú Tuyến đến từ Vĩnh Phúc. Được biết hiện giờ chị đang sở hữu 1 ô đất hình vuông gần đường đê có kích thước 20x30m = 600m2. Gặp gỡ và trao đổi thẳng thắn với đội ngũ kiến trúc sư của chúng tôi, chị Tuyến yêu cầu thiết kế cho gia đình mình một mẫu biệt thự 2,5 tầng mái thái đẹp và bề thế.
Sau khi thảo luận kỹ lưỡng và chi tiết yêu cầu của khách hàng, kiến trúc sư của công ty STQ đã bắt tay ngay vào công việc thiết kế mẫu biệt thự 2 tầng 5 phòng ngủ 200m2 cho gia đình chú Tuyến ở Vĩnh Phúc. Dưới đây là một số đặc trưng của mẫu thiết kế biệt thự đẹp 2 tầng 5 phòng ngủ ở Vĩnh Phúc, mời quý vị theo dõi.
Thông số công trình mẫu thiết kế biệt thự 2 tầng 5 phòng ngủ 200m2 của chú Tuyến ở Vĩnh Phúc.
Mẫu biệt thự:
|
BT12756
|
Số tầng:
|
02
|
Chủ đầu tư:
|
Chú Tuyến
|
Địa chỉ:
|
Vĩnh Phúc
|
Mặt tiền:
|
18m
|
Chiều sâu:
|
15m
|
Diện tích ô đất:
|
20x30 = 600m2
|
Kiến trúc sư thiết kế:
|
Phạm Thành Tư
|
Kỹ sư kết cấu:
|
Lê Văn Nhung
|
Kỹ sư điện nước:
|
Nguyễn Văn Cao
|
Năm thi công:
|
2016
|
Kinh phí đầu tư dự kiến:
|
2,7 tỷ VND
|
Thông số công năng, diện tích:
|
- Tầng 1: 1 phòng khách, 2 phòng ngủ, 1 phòng bếp ăn, 2 phòng vệ sinh, 1 phòng thờ - diện tích tầng 1: 200m2
- Tầng 2: 1 phòng sinh hoạt chung, 3 phòng ngủ, 3 phòng vệ sinh - diện tích tầng 2: 200m2
- Tầng áp mái - diện tích: 100m2
|
Khái quát phối cảnh của mẫu biệt thự 2 tầng 200m2 kiểu Thái đẹp.

Phối cảnh 1: Thiết kế mẫu biệt thự 2 tầng 200m2 kiểu Thái đẹp
Thiết kế biệt thự 2 tầng 200m2 kiểu Thái nổi bật với tone sơn ngoại thất trắng tinh tế
Mẫu thiết kế biệt thự 2 tầng 200m2 kiểu Thái đẹp mê ly thu hút sự chú ý, ánh mắt người nhìn. Mẫu biệt thự 2 tầng có chiều cao tầng 1 là 3.9m, chiều cao tầng 2 là 3.7m.
Tổng thể mẫu thiết kế biệt thự 2 tầng 200m2 kiểu Thái được nổi bật với tone sơn ngoại thất trắng ghi. Do chú Tyến sinh năm 1985 (Ất Sửu) thuộc mệnh Kim hợp với tone màu sáng hoặc những màu ánh kim vì những màu này mang lại cho gia chủ sự may mắn, niềm vui. Vì thuộc mạng Kim nên tốt nhất tránh những màu như màu hồng, màu đỏ vì những màu này ứng với mệnh Hỏa mà Hỏa khắc Kim. Vì thế, khi thiết kế mẫu nhà 2 tầng 200m2, chúng tôi lựa chọn tone sơn màu trắng cho ngôi nhà của chú Tuyến nhằm đáp ứng sở thích, nhu cầu và hợp với mệnh tuổi của chú Tuyến. Màu trắng là tone màu tinh khiết, nhẹ nhàng mang đến sự sạch sẽ, tươi sáng cho kiến trúc.
Để phá bỏ sự lạnh lẽo và khô cứng mà màu trắng đem lại cho không gian, chúng tôi đã thiết kế thêm các đường chỉ lõm tinh tế quanh các khối tường. Sự xuất hiện của các đường kẻ chỉ lõm khiến cho các khối tường sơn màu trắng không còn khô cứng, lạnh lẽo mà trở nên ấn tượng tôn lên sự sang trọng cho tổng thể ngôi nhà nhà ở của gia đình chú Tuyến.
Phần chân tường của mẫu nhà đẹp 2 tầng 200m2 có điểm nhấn là đá ốp tường Marble màu ghi sẫm. Đá ốp tường màu ghi sẫm được cho là tone màu sang trọng, quý phái phù hợp với những mẫu biệt thự mái thái bề thế. Đá marble không chỉ có tác dụng trang trí cho mẫu biệt thự 2 tầng 200m2 mái thái còn có tính năng chống thấm nước, chống nấm mốc và bảo vệ cho chân tường trường tồn với thời gian.

Phối cảnh 2: Mẫu thiết kế biệt thự 2 tầng 200m2 5 phòng ngủ
Mẫu thiết kế biệt thự 2 tầng 200m2 5 phòng ngủ sở hữu hệ cửa kính cường lực khung gỗ sang trọng.
Mẫu biệt thự 2 tầng 200m2 5 phòng ngủ được sử dụng hệ thống cửa kính cường lực bao quanh là khung gỗ sang trọng, thể hiện sự kết hợp hoàn hảo của hai vật liệu kính và gỗ. Cửa chính ra vào được thiết kế khung cánh cửa là loại gỗ cao cấp không bị nấm mốc hay cong vênh, phần rìa của cánh của là kính. Ở 2 bên mặt tiền và trên tầng 2, các hệ cửa sổ đều được thiết kế cửa kính 4 cánh khung gỗ giúp lấy sáng và tạo thoàng đãng cho không gian nội thất.
Hệ cửa gỗ cao cấp được đánh giá cao về tính thẩm mỹ cao và vẻ sang trọng mà nó mang lại, vì thế làm cửa bằng chất liệu gỗ cao cấp thường có giá thành khá cao trên thị trường. Mẫu biệt thự 2 tầng ở Vĩnh Phúc lựa chọn hệ cửa kính kết hợp khung gỗ tôn lên sự bề thế và hài hòa cho công trình.
Khu lan can và phần chân mái hiên ở tầng 2 của mẫu nhà 2 tầng 200m2 được ốp gạch chỉ màu nâu đen tạo nên sự hài hòa, thống nhất về màu sắc giữa mái nhà và tổng thể ngôi nhà.

Phối cảnh 3: Thiết kế biệt thự 2 tầng của gia đình chú Tuyến ở Vĩnh phúc

Phối cảnh 4: Thiết kế biệt thự 2 tầng của gia đình chú Tuyến ở Vĩnh phúc
Mẫu thiết kế biệt thự 2 tầng của gia đình chú Tuyến ở Vĩnh Phúc sở hữu kết cấu mái thái đẹp, đồ sộ.
Mẫu thiết kế biệt thự 2 tầng ở Vĩnh Phúc nổi bật với kết cấu mái thái bề thế. Khung của mái thái là khung thép mạ kẽm có trọng lượng nhẹ. Thép mạ kẽm là lõi thép và bao phủ bên ngoài là lớp kẽm chất lượng cao, có tác dụng chống sự ăn mòn từ bên ngoài mà không cần phải phủ sơn. Ngoài ra, khung mái thái của mẫu nhà 200m2 có tính năng chống rỉ sét, ăn mòn, trọng lượng nhẹ và kết cấu chắc chắn.
Với kết cấu khung mái thái bằng thép mạ kẽm, mẫu biệt thự 2 tầng 200m2 đẹp càng trở nên vững chãi, kiên cố giúp bảo vệ tổng thể cả ngôi nhà khỏi những ảnh hưởng xấu của nắng, mưa, gió, bão… và các hiện tượng thời tiết khác.
Hiện nay, mái thái được sản xuất theo dây chuyền công nghệ mới, hiện đại có nhiều tính năng ưu việt để bảo vệ ngôi nhà và đa dạng về màu sắc mái thái để khách hang có nhiều sự lựa chọn hơn. Mẫu biệt thự 2 tầng 5 phòng ngủ 200m2 của chú Tuyến sở hữu kết cấu mái thái có màu nâm sẫm sang trọng. Màu nâu sẫm được xem là màu sắc hiện đại, thể hiện quý tộc và sang trọng của chủ đầu tư.
Đặc biệt hơn cả, mẫu nhà 200m2 ở Vĩnh Phúc được thiết kế theo lối mái lớn và có nhiều mái phụ cách điệu tạo cho mái nhà có sự thông thoáng, giảm tà khí, hung khí tích tụ ở nóc nhà. Ở khu vực tầng 1 mái được thiết kế đua ra ngoài vừa tạo điểm nhấn trang trí lịch lãm vừa giúp che mưa, che nắng cho mẫu thiết kế nhà vườn 2 tầng 200m2.
Tổng quan mặt bằng mẫu biệt thự 2 tầng 5 phòng ngủ 200m2 xây dựng trên ô đất 600m2

Mặt bằng tổng thể mẫu biệt thự 2 tầng 200m2 mặt tiền 18m
Mặt bằng tổng thể mẫu thiết kế biệt thự 2 tầng 200m2 mặt tiền 18m
Mẫu thiết kế biệt thự đẹp 2 tầng 200m2 mặt tiền 18m được xây dựng trên ô đất 600m2 ở Vĩnh Phúc. Ngoài 200m2 diện tích nhà ở, số diện tích còn lại được thiết kế để làm không gian sân vườn tiểu cảnh xanh mát. Chòi nghỉ mát được thiết kế trên khuôn viên xanh mát nhằm phục vụ nhu cầu thư giãn, nghỉ ngơi và vui chơi của các thành viên trong gia đình.
Mẫu thiết kế biệt thự 2 tầng 200m2 mái thái đẹp ở Vĩnh Phúc được thiết kế với 5 phòng ngủ sang trọng, đầy đủ tiện nghi.

Mặt bằng tầng 1 - mẫu thiết kế biệt thự 2 tầng 200m2 kích thước 18x15m
Mặt bằng tầng 1 - mẫu thiết kế biệt thự 2 tầng 200m2 kích thước 18x15m
Mặt bằng tầng 1 của mẫu biệt thự 2 tầng 200m2 kích thước 18x15m gồm 1 phòng khách, 1 phòng thờ, 1 phòng bếp ăn và 2 phòng ngủ tiện nghi.
Bên phải khu tiền sảnh của mẫu thiết kế biệt thự 200m2 là không gian phòng khách với đồ nội thất sang trọng và hiện đại. Phòng ngủ 2 được thiết kế bên trái khu tiền sảnh phục vụ nhu cầu thư giãn, nghỉ ngơi của chủ nhân.
Phòng bếp ăn của mẫu thiết kế biệt thự 2 tầng có diện tích rộng, khu nấu nướng được trang bị đồ dùng nấu nướng đầy đủ và hiện đại, còn khu vực bàn ăn thì sạch sẽ và sang trọng.
Từ tiền sảnh nhìn sâu vào là không gian phòng thờ. Không gian phòng thờ trang nghiêm, là nơi con cháu thể hiện sự hiếu thảo, tưởng nhớ đến ông bà tổ tiên. Đặc biệt, thảm thổ cẩm quý đưcọ trải ở khu vực sảnh của tầng 1 góp phần tạo nên sự sang trọng, quyền quý của gia chủ.

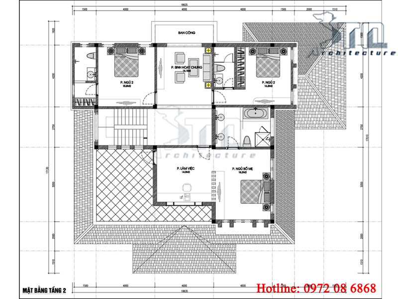
Mặt bằng tầng 2 - thiết kế biệt thự 2 tầng 200m2 được xây dựng trên ô đất 600m2
Mặt bằng tầng 2 - thiết kế biệt thự 2 tầng 200m2 được xây trên ô đất 600m2
Mặt bằng tầng 2 của mẫu biệt thự 2 tầng bao gồm 1 phòng sinh hoạt chung, 3 phòng ngủ và 3 phòng vệ sinh. Khu vực này là không gian riêng tư của từng thành viên trong gia đình. Mỗi phòng ngủ đều được thiết kế theo sở thích và nhu cầu của từng người trong gia đình. Phòng sinh hoạt chung là không gian sum họp, quây quần bên nhau trò chuyện.
Đặc biệt phòng ngủ của gia chủ có diện tích 50m2 tích hợp cả phòng ngủ, phòng làm việc và phòng vệ sinh khép kín.

Mặt đứng - thiết kế biệt thự 2 tầng 200m2 đẹp mê ly
Một vài hình ảnh về mặt đứng của mẫu biệt thự 2 tầng 200m2 mái thái đẹp.

Mặt đứng 2 - thiết kế mẫu biệt thự 200m2
Ngắm nhìn mặt đứng của mẫu biệt thự 2 tầng 200m2 bạn sẽ thấy hệ thống cửa kính cân đối với bố cục của tổng thể giúp lấy sáng và đón gió tự nhiên vào các phòng.
Mẫu thiết kế biệt thự 2 tầng 200m2 của gia đình chú Tuyến ở Vĩnh Phúc sở hữu hệ thống mái thái đăng đối bề thế, đồ sộ thu hút ánh nhìn. Mẫu thiết kế biệt thự 2 tầng 5 phòng ngủ 200m2 này được xây dựng trên ô đất 600m2 với kinh phí dự kiến đầu tư là 2.7 tỷ VND. Tuy nhiên, trong quá trình thiết kế và tùy thuộc vào chất lượng vật liệu mà kinh phí có thể điều chỉnh một chút.
Trên đây là những đặc trưng cơ bản của mẫu thiết kế biệt thự 2 tầng 200m2 mái thái đẹp mê ly của gia đình chú Tuyến ở Vĩnh Phúc, chúng tôi hy vọng mẫu biệt thự 2 tầng đẹp này sẽ làm quý vị hài lòng và yêu thích. Cảm ơn quý vị đã chú ý theo dõi.
Thông tin chi tiết mời liên hệ. Hotline: 0972 08 6868
Không có nhận xét nào:
Đăng nhận xét