Mẫu thiết kế nhà phố 2 tầng hiện đại mặt tiền 9m với diện tích 120m2, kích thươc 9x13m được xây dựng trên ô đất 300m2 với kinh phí đầu tư dự kiến khoảng 1 tỷ do ông Thành ở Hưng Yên làm chủ đầu tư.
Với ưu điểm sở hữu ô đất khá rộng rãi, quang đãng, và những yêu cầu, mong muốn của gia chủ về một không gian sống hiện đại, sang trọng, các kỹ sư của chúng tôi đã đưa ra mẫu thiết kế nhà phố độc đáo, đầy ấn tượng. Mẫu nhà phố 2 tầng vô cùng hiện đại này phù hợp trong không gian khu phố và thể hiện phong cách, đẳng cấp của gia chủ.
Thông số mẫu thiết kế nhà phố 2 tầng 120m2 hiện đại ở Hưng Yên
1. Mẫu nhà phố: NP 601435
2. Số nhà: 2 tầng
3. Chủ đầu tư: Ông Nguyễn Văn Thành
4. Địa chỉ: Toàn Thắng, Kim Động, Hưng Yên
5. Mặt tiền: 9m
6. Chiều sâu: 13m
7. Kích thước ô đất: 300m2
8. Kiến trúc sư thiết kế: Đỗ Thị Hương
9. Kỹ sư kết cấu: Lê Văn Nhung
10. Kỹ sư điện nước: Nguyễn Văn Cao
11. Năm thi công: 2016
12. Kinh phí đầu tư dự kiến: 1 tỷ
13. Thông số công năng diện tích:
- Tầng 1: 1 phòng khách,1 phòng ngủ, 1 phòng bếp, 1 phòng vệ sinh, diện tích 120m2
- Tầng 2: 2 phòng ngủ, 1 phòng thờ, 1 phòng vệ sinh chung, 1 sân chơi, diện tích 120m2
Mê mẩn phối cảnh mẫu thiết kế nhà phố ở Hưng Yên siêu đẹp và hiện đại
Mẫu thiết kế nhà phố 2 tầng hiện đại 120m2 ở Hưng Yên sử dụng tone màu chủ đạo là màu trắng sang trọng, tinh tế. Được biết gia chủ là ông Thành sinh năm 1971, thuộc mệnh Kim nên các kỹ sư đã linh hoạt lựa chọn màu sắc phù hợp. Và màu trắng được xem là màu sắc của người mệnh Kim. Đây là tông màu dễ dàng phối hợp với các màu sắc khác. Những hình khối vuông vắn, khỏe khoắn với tone màu trắng khiến ngôi nhà gây được ấn tượng ngay từ cái nhìn đầu tiên. Đồng thời tone màu nâu xám được sử dụng ở phần mặt tiền bao quanh khung cửa kính kích thước lớn trong suốt tạo vẻ sang trọng.
Nhìn tổng thể, ngoại thất của ngôi nhà với 2 tông màu chủ đạo là màu trắng và màu nâu xám. Đây là những màu sắc sinh vượng (Hoàng Thổ sinh Kim), luôn đem lại sự may mắn, niềm vui và thịnh vượng cho gia chủ. Phần mặt tiền chúng tôi sử dụng đá ghép màu nâu xám để tạo ra sự khác biệt và cũng là điểm nhấn cho lối kiến trúc. Với sự pha trộn hài hoà về màu sắc, kiểu dáng độc đáo, mới lạ, đá ghép vĩnh cửu phù hợp với nhiều mẫu thiết kế khác nhau. Được sử dụng để ốp tường, đá ghép mang lại cho ngôi nhà mặt tiền đẹp, tạo sự khoẻ khoắn, bền đẹp, chắc chắn, được đánh giá cao về mặt thẩm mỹ đồng thời đảm bảo chất lượng, chống chịu hiệu quả với mọi tác động của thời tiết.

Phối cảnh 1: Thiết kế nhà phố 2 tầng 120m2 ở Hưng YênNhà phố 2 tầng hiện đại mặt tiền 9m ở Hưng Yên sở hữu phong cách vô cùng hiện đại.
Nhìn tổng thể mẫu thiết kế nhà đẹp 2 tầng, ngôi nhà sở hữu những hình khối đơn giản, vuông vắn, vững chãi. Kết hợp với những mảng tường có những đường gờ chỉ nhỏ phân chia tạo những hình chữ nhật với kích thước khác nhau đem đến sự khác biệt, mới mẻ cho mặt tiền của ngôi nhà. Những hình khối được sáng tạo liên kết với nhau khiến cho kiến trúc ngôi nhà vừa hài hòa lại độc đáo, khiến toàn bộ mẫu kiến trúc trở nên gọn gàng, chắc chắn mà không cần đến những chi tiết quá cầu kỳ, đồ sộ. Ban công tầng 2 được thiết kế nhô ra phía trước tạo sự đặc biệt cho lối kiến trúc đồng thời nhằm hạn chế ảnh hưởng xấu của thời tiết tời nội thất cũng như hệ cửa kính lớn phần mặt tiền. Lan can được làm bằng lớp kính dày chịu lực bao quanh tạo vẻ hiện đại, sang trọng.
Ngôi nhà được thiết kế hàng rào bao quanh gồm những thanh sắt màu nâu khỏe khoắn với khối tường kiên cố. Và chiếc cổng chính bằng những thanh sắt sơn màu giống như những khúc gỗ, đan xen với nhau tạo sự liên kết chắc chắn, với kích thước tương đối lớn vừa đảm bảo về mặt an ninh cho ngôi nhà cũng như đảm bảo về mặt thẩm mỹ, tạo không gian rộng thuận tiện cho việc di chuyển.

Phối cảnh 2: Thiết kế nhà 2 tầng 120m2 mang phong cách hiện đạiNgắm mẫu thiết kế nhà 2 tầng 120m2 theo phong cách hiện đại với kết cấu mái bằng kiên cố.
Ngôi nhà phố ở Hưng Yên không sử dụng mái ngói truyền thống mà sử dụng mái bằng đơn giản mà vẫn hết sức phù hợp với phong cách hiện đại. Phần mái của ngôi nhà được đổ khối bê tông hết sức vững chắc, kiên cố góp phần tạo kết cấu vững chãi cho toàn bộ ngôi nhà và bảo vệ nội thất của ngôi nhà khỏi những tác động của thiên nhiên. Những phần tường được dựng cao hơn ở mặt bên và một phần mặt tiền của ngôi nhà giúp che chắn, sẵn sàng ứng phó với sự biến đổi thất thường của thời tiết đồng thời khiến cho khối kiến trúc có sự khác biệt, nổi trội hơn so với các mẫu nhà phố khác xung quanh.
Phần tiền sảnh của ngôi nhà được bố trí một khu vực nhỏ để trồng cây cảnh, tạo không gian sống xanh cho gia chủ. Phần sân được tận dụng tối đa diện tích có đủ chỗ để phương tiện đi lại của cả gia đình cũng như có khoảng trống cho trẻ em vui chơi.
Chi tiết mặt bằng công năng mẫu thiết kế nhà phố 2 tầng 120m2.

Mặt bằng tầng 1: Thiết kế nhà 2 tầng 120 m2Mẫu thiết kế nhà phố 2 tầng 120m2 ở Hưng Yên với mặt bằng tầng 1
Tọa lạc trên khu đất với diện tích rộng 300m2 ở Hưng Yên, ngoài 120m2 được sử dụng làm nhà ở thì diện tích còn lại của gia chủ được tận dụng tối đa làm sân chơi, nơi để xe cộ và lối đi bao quanh ngôi nhà và khu vực trồng cây xanh là nơi không thể thiếu trong một không gian sống hiện đại ngày nay.
Bước qua tiền sảnh ngôi nhà phố 2 tầng mặt tiền 9m là không gian phòng khách tại tầng 1. Diện tích phòng khách khá rộng được bố trí đầy đủ đồ nôi thất tiện nghi, hiện đại như: bộ bàn ghế sa lông, tủ, kệ để ti vi. Hệ cửa kính 4 cánh lớn với lớp kính trong suốt, cách âm đem lại nguồn ánh sáng và gió tự nhiên và làm cho đồ nội thất cũng như toàn bộ không gian phòng khách thêm sáng sủa, sang trọng, khoáng đãng.
Qua phòng khách là một lối đi phụ hướng ra sân vườn phía ngoài. Đây là lối đi thuận tiện cho các thành viên nếu không muốn đi qua phòng khách làm gián đoạn cuộc trò chuyện đang diễn ra.
Tiến sâu vào bên trong là phòng bếp có diện tích tương đối lớn phân chia khu vực nấu nướng và nơi ăn uống của cả gia đình. Phòng bếp sở hữu dãy bàn nấu nướng hiện đại, tiện nghi nằm sát tường vừa tiện lợi vừa tạo ra không gian rộng giúp các thành viên dễ dàng di chuyển cũng như có khoảng trống để các đồ dùng cần sử dụng khi nấu nướng. Một bộ bàn ăn 8 ghế đầy đủ cho các thành viên trong gia đình cũng như cho khách đặt gọn gàng ở giữa phòng ăn. Phòng ăn được thiết kế có 2 cửa sổ 4 cánh lớn giúp thoát mùi trong khi nấu ăn, tạo không gian thoáng đãng cho căn phòng, tận dụng được ánh sáng và gió tự nhiên tạo sự thoải mái, thư giãn cho cả gia đình.
Một phòng về sinh chung được thiết kế nằm sát cầu thang, gần phòng bếp thuận tiện cho người sử dụng, thu gọn diện tích mặt bằng.
Ở không gian tầng 1 các kỹ sư cũng linh hoạt thiết kế một phòng ngủ với đầy đủ tiện nghi bao gồm: giường, kệ ti vi, tủ. Khung cửa kính trong suốt giúp người sử dụng dễ dàng quan sát ra phía cổng chính của ngôi nhà cũng như làm cho căn phòng thêm sáng sủa. Phòng ngủ dưới tầng 1 có thể dành cho những người cao tuổi để thuận tiện trong việc di chuyển.

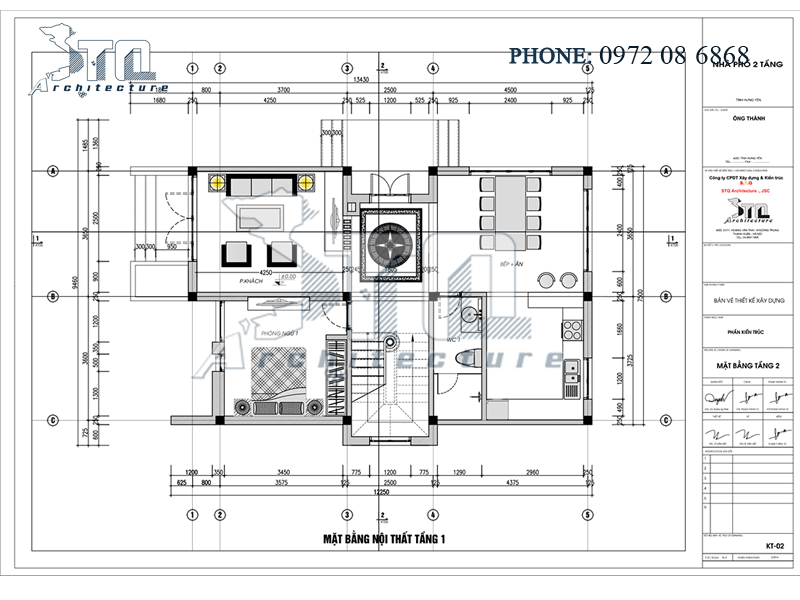
Mặt bằng tầng 2: Thiết kế nhà 2 tầng hiện đại 120m2Mẫu thiết kế nhà phố 2 tầng hiện đại 120m2 với mặt bằng tầng 2
Mặt bằng tầng 2 của mẫu thiết kế nhà phố 2 tầng hiện đại bao gồm: 2 phòng ngủ, 1 phòng thờ, 1 phòng vệ sinh chung và khu sân phơi. Phòng ngủ 2 với diện tích 15m2 có cửa sổ kính 4 cánh lớn có thể phóng tầm mắt ra bên ngoài thưởng thức cảnh đẹp tự nhiên. Ban công được thiết kế bao quanh tầng 2 cùng với bồn trồng cây cảnh điều hòa không khí đồng thời tạo một không gian sống mở, hòa hợp với thiện nhiên. Phòng ngủ 3 lớn hơn với diện tích 18m2, cũng có hệ cửa kính 4 cánh hướng ra phía sau của ngôi nhà. Các phòng ngủ đều được trang bị đồ nội thất hiện đại bao gồm: giường, tủ, kệ ti vi, bàn làm việc đáp ứng nhu cầu làm việc và thư giãn của các thành viên trong gia đình.
Phòng thờ được đặt riêng trên tầng 2 với diện tích 12.3m2. Đây là không gian thờ cúng linh thiêng, thể hiện lòng thành kính của con cháu với tổ tiên nên được thiết kế trên tầng 2 để có được sự yên tĩnh, không khí trang trọng, uy nghiêm.
Khu vực phía sau tầng 2 cũng được các kiến trúc sư của chúng tôi tận dụng diện tích dùng làm sân phơi, sân chơi cho trẻ. Với diện tích 15m2 đây là một nơi thích hợp cho việc phơi quần áo cũng như có một không gian thoáng đãng, mát mẻ, hài hòa với thiên nhiên bên ngoài.

Mặt đứng A-C: Thiết kế nhà phố 2 tầng hiện đại ở Hưng Yên
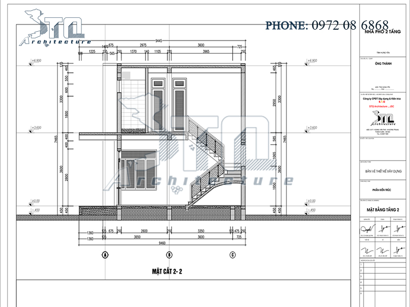
Mẫu thiết kế nhà phố 2 tầng hiện đại ở Hưng Yên với chiều cao tầng 1 là 3.6m, chiều cao tầng 2 là 3.3m.

Mặt cắt 1-1: Thiết kế nhà phố 2 tầng 3 phòng ngủ.
Trên đây là hình ảnh mặt cắt của mẫu thiết kế nhà phố 2 tầng 3 phòng ngủ với đầy đủ các thông số và ghi chú để chủ đầu tư và đơn vị thi công nắm rõ các chi tiết khi xây dựng

Mặt cắt 2-2: Thiết kế nhà phố 2 tầng 3 phòng ngủ trên khu đất 300m2
Mẫu thiết kế nhà phố hiện đại 2 tầng tọa lạc trên ô đất với diện tích 300m2 ở Hưng Yên vừa đảm bảo công năng sử dụng vừa, sự hoàn thiện kỹ thuật đảm bảo chất lượng vừa được đánh giá cao về mặt thẩm mỹ. Mẫu nhà phố hiện đại 2 tầng 120m2 này hứa hẹn sẽ mang đến cho gia chủ một cuộc sống tiện nghi, sang trọng và thể hiện được phong cách, cá tính riêng.
Nếu quý vị yêu thích mẫu nhà phố đẹp này, hãy liên hệ với chúng tôi để được tư vấn chi tiết hơn.
Hotline: 0972 08 6868
Không có nhận xét nào:
Đăng nhận xét